Parang Residence Bali

pARANG rESIDENCES

Berawa, Bali, Indonesia

2025

730 sqm

Parang Residences is a boutique apartment building in Berawa, Bali that reinterprets local craft through contemporary architecture. The project evolves from a textured brick façade inspired by the parang batik pattern, translating the rhythmic diagonal motif of traditional Indonesian textiles into a layered masonry screen that modulates light, shadow, and privacy.

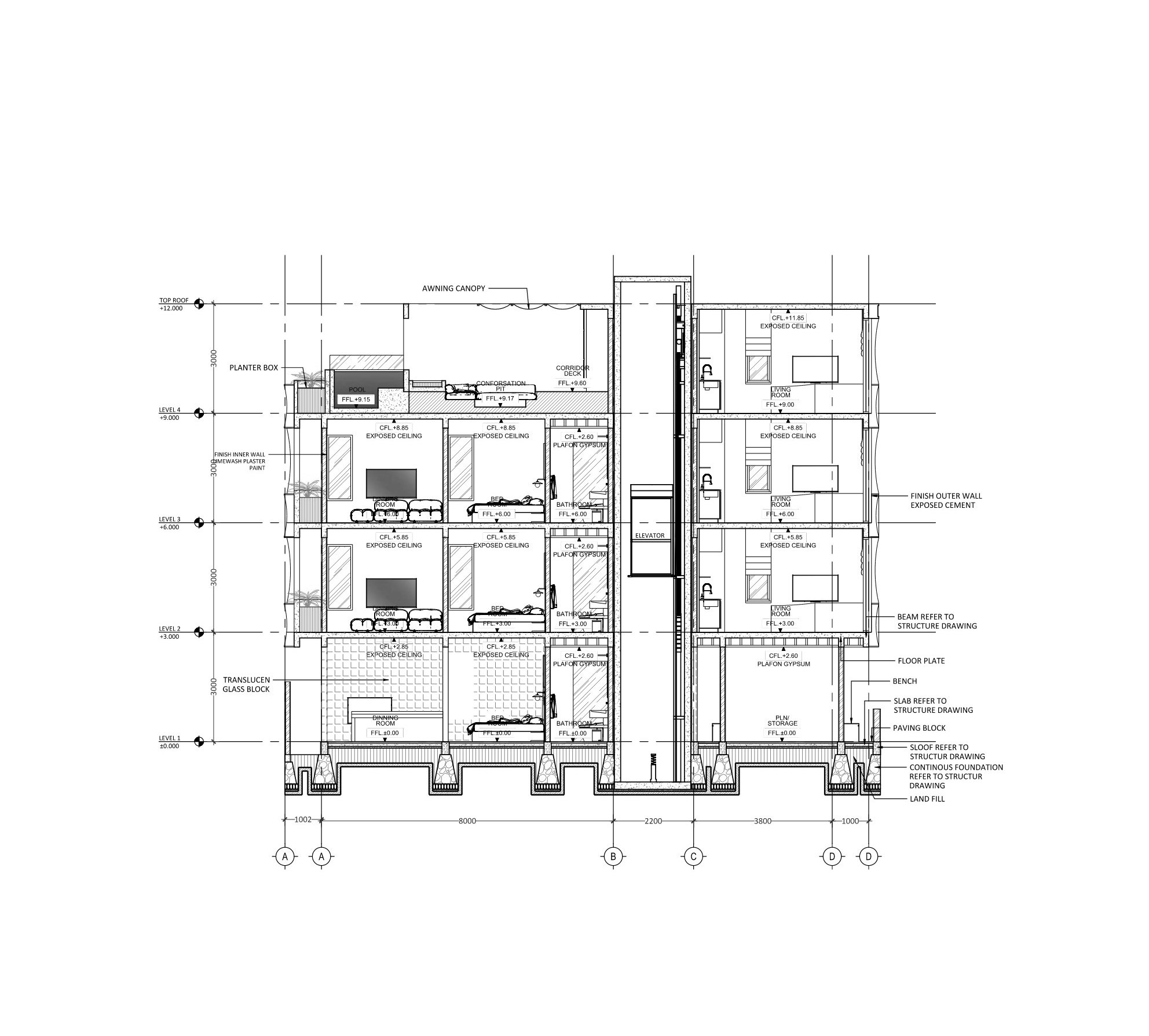
Set on a compact urban site, the building is organized vertically across four levels with a series of efficient one-bedroom residences and a shared rooftop amenity space overlooking surrounding rice fields. The architecture emphasizes climatic responsiveness and material honesty—deep textures, planted balconies, and carefully calibrated openings create passive shading and cross-ventilation suited to Bali’s tropical environment.

 

Ground floor units extend into private garden patios, while upper units open to balconies and framed views. At the top, a rooftop pool and lounge provide a social heart for residents, designed for sunset gatherings and quiet moments above the neighborhood.

The material palette prioritizes durability and regional construction practices, pairing textured plaster, locally sourced brick, and concrete surfaces that weather gracefully in the tropical climate. The result is a compact residential building that blends vernacular reference, contemporary detail, and efficient urban living—a new interpretation of boutique housing in Berawa.

 

Drawings

Renderings