Vans Skate

Lane House Studio designed the spatial environment for the Vans x AVE 2.0 activation. A branded event and skate space merging athletic culture with considered spatial design.

VANS x AVE 2.0

Shanghai, CN

2024

A collaboration with PUSH Media

Located along the Bund in Shanghai, this temporary installation was designed for the launch of the Vans AVE 2.0 “Always Pushing” campaign. The project transforms a portion of the waterfront promenade into a hybrid public venue combining skateboarding, retail, exhibition, and community gathering spaces.

The site is organized around a central skate park that serves as both a performance space and the social heart of the installation. Surrounding it, a series of lightweight pavilions host brand pop-ups, retail displays, food vendors, and live programming, creating an active environment that blends skate culture with urban public life.

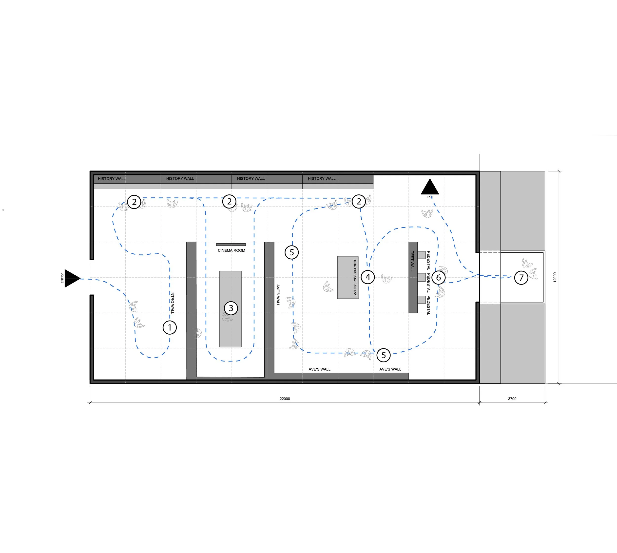
At the center of the experience, a dedicated exhibition space presents the history of Vans and the career of professional skateboarder Anthony Van Engelen through archival imagery, product displays, and film installations. The sequence allows visitors to move between skating, exhibition, and retail in a fluid spatial narrative.

Constructed from modular steel frames, mesh panels, and translucent roofing systems, the architecture creates a flexible and temporary urban landscape that frames views toward the Shanghai skyline while establishing a strong graphic identity aligned with the Vans brand.